Building a new home doesn’t require 3,000 square feet to feel spacious and functional. The 1800 sq ft house plan hits a practical sweet spot—offering enough room for a 3 bedroom layout, efficient construction costs, and lower utility bills without sacrificing comfort. This guide covers everything you need to know before you purchase blueprints and build.

Quick Overview of an 1800 Sq Ft House Plan

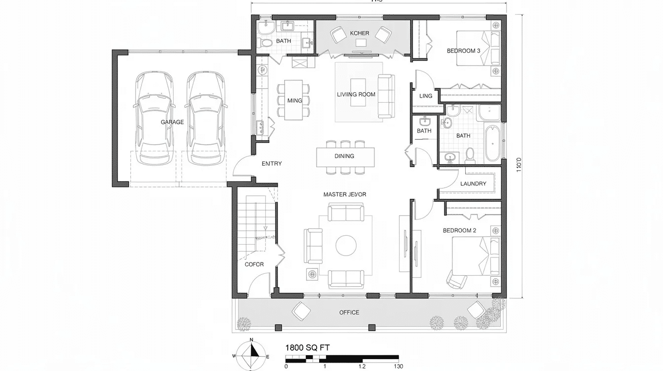
This image depicts a detailed 1800 sq ft house plan featuring a modern farmhouse design with an open floor plan that includes a great room, dining area, and a master suite. The exterior elevations showcase a front porch and various exterior materials, while the layout emphasizes vaulted ceilings and thoughtful interior elevations.

The 1800 sq ft configuration represents a deliberately optimized balance between living space and affordability. Whether you’re a growing family, empty nesters downsizing, or first-time homeowners prioritizing value, this footprint delivers what most households actually need.

This article focuses on practical, buildable house plans based on real-world layouts from 2023–2025 builds—not just inspiration photos. Here’s what you’ll learn:

  • Layout ideas for one story ranch and modern farmhouse designs
  • Realistic cost ranges for both plan purchase and construction
  • Foundation options (slab, crawlspace, basement) and when each makes sense
  • Customization tips for tailoring plans to your site and lifestyle

A typical 1800 sq ft configuration includes 3 beds, 2–2.5 baths, an open floor plan, and a 2-car garage. Content here is written from a plan provider perspective to help you compare options before ordering.

Key Specs of a Typical 1800 Sq Ft House Plan

Most 1800 sq ft floor plans share consistent specifications that make them buildable on standard suburban lots platted since 2010.

Common specifications include:

Feature

Typical Range

Footprint width

55’–60’ (often 58’)

Footprint depth

55’–60’ (e.g., 59’6”)

Bedrooms

3

Bathrooms

2 or 2.5

Garage

600–650 sq ft (2-car)

Main floor ceiling

9’ standard

Great room ceiling

11’–14’ (vaulted ceilings)

Most plans are single-story ranch or modern farmhouse layouts, similar in livability to bungalow-style one-story homes, with some 1.5-story options adding bonus rooms over the garage. The 1800 sq ft figure refers strictly to conditioned living space—porches and garages are counted separately.

Three-bedroom 1800 sq ft plans dominate because they serve the widest range of households. Couples get a guest room and home office. Families with one child have breathing room. Downsizers maintain flexibility for visiting family.

Split-bedroom ranch layout is the most popular configuration:

  • Master suite positioned at the rear for privacy and outdoor access
  • Two secondary bedrooms on the opposite side sharing a hallway bath
  • Open-concept core connecting the great room, dining area, and kitchen with island

The master suite typically features a walk-in closet (7’×8’ or larger), double vanity, separate toilet closet, and walk-in shower. Many plans include flex space options—a compact office off the foyer or homework zone near secondary bedrooms.

Modern designs minimize wasted hallways through angled entries and pocket doors, keeping circulation efficient and maximizing usable floor area on the main floor.

The image depicts a modern ranch home exterior featuring an attached two-car garage and a beautifully landscaped front yard, showcasing the stylish design typical of modern farmhouse plans. The front view highlights the exterior materials and inviting front porch, creating a welcoming atmosphere for this 1800 sq ft house plan.

Modern Farmhouse & Ranch Style 1800 Sq Ft Designs

The modern farmhouse plan dominates current design trends, followed closely by New American ranch and compact Craftsman styles. Bold options like black ranch house exteriors also appeal to homeowners wanting striking curb appeal. These exteriors stay budget-conscious through straightforward rooflines and standard truss systems.

Modern farmhouse exterior features:

  • Board-and-batten siding with simple gable roof
  • Metal roof accents over the porch
  • Black-framed windows for visual contrast

Typical porch dimensions:

  • Front porch: 200–220 sq ft (about 8’ deep across half the elevation)
  • Covered rear porch: 250–280 sq ft for outdoor dining

Ranch and New American designs mix exterior materials—siding paired with stone or brick skirting, wide eaves, and grouped windows for natural light, offering many options for a ranch home exterior makeover. Interior farmhouse elements include shiplap accent walls, exposed or faux beams, and a kitchen island with seating for 4.

Dimensions, Area & Structural Details for 1800 Sq Ft Plans

Exact dimensions matter for lot fit, permitting, and working with a structural engineer. Here’s how square footage typically breaks down:

Area

Square Footage

Conditioned living

1,800 sq ft

2-car garage

600–650 sq ft

Covered porches

400–500 sq ft

Total under roof

~2,850–2,950 sq ft

Structural specifications:

  • Exterior walls: 2×4 framing standard, with 2×6 upgrade option for R-19+ insulation
  • Wall insulation: R-15 (2×4) or R-21 (2×6)
  • Attic insulation: R-38 or better
  • Crawlspace floor: R-19

Standard roof loading uses 30 psf live load and 10 psf dead load in temperate regions, though local engineers adjust these based on unique conditions and location requirements, especially for split-entry or raised ranch home designs where grades and elevations differ.

Foundation Options for an 1800 Sq Ft House (Slab, Crawlspace, Basement)

The image illustrates various foundation options for an 1800 sq ft house, including slab, crawlspace, and basement foundations, highlighting the importance of selecting the right type based on climate, soil conditions, and budget. This visual guide assists homeowners in understanding the foundational choices available for their modern farmhouse plan.

Most 1800 sq ft plans can sit on any of three foundation types. Your choice depends on climate, soil conditions, and budget.

Slab-on-grade:

  • Single concrete layer poured at grade
  • Common in Texas, Florida, Georgia, Arizona
  • Fastest to construct, lowest material cost

Crawlspace:

  • House raised 18”–48” above grade
  • Popular on sloped lots and moisture-prone areas
  • Easy access for plumbing and HVAC maintenance

Basement:

  • Full or partial underground level
  • Standard in Minnesota, Ontario, Northeast states
  • Provides frost protection plus storage or future living space

Plan providers typically price these foundation options identically at the design stage. Actual construction cost varies significantly by site. A build report from your builder should detail local pricing.

Ceilings, Roof & Energy-Efficient Features

Interior volume strategy in 1800 sq ft homes uses selective ceiling height variation. Standard 9’ ceilings keep hallways and bedrooms comfortable, while vaulted ceilings (11’–14’) in the great room create drama without adding square footage.

Roof framing options:

  • Factory-built trusses: standard for most modern builds, cost-effective
  • Site-built stick framing: custom projects requiring complex roof type geometry

Most 1800 sq ft homes meet or exceed 2018–2021 IECC energy codes. Features include properly sized overhangs, cross-ventilation window placement, and efficient mechanical systems. Optional upgrades like spray foam insulation or R-49 attic packages can reduce long-term utility costs by 20–40%—a strong selling point for homeowners watching monthly expenses.

This image depicts a single-story modern farmhouse plan featuring a covered front porch and metal roof accents. The design emphasizes an open floor plan, ideal for a cozy living space, and showcases exterior materials that enhance the home's charm.

Bedroom, Kitchen & Additional Room Features

At 1800 sq ft, every room must earn its place. Clear priorities create the most livable homes.

Primary bedroom details:

  • Rear corner location for privacy
  • Direct door access to rear porch in some plans
  • Walk-in closet positioned to buffer sound from the great room

Secondary bedrooms: typically 10’×11’ to 11’×12’, sharing a hallway bath or Jack-and-Jill arrangement with relevant interior elevations showing layout efficiency.

Kitchen layout:

  • Central island with seating (8’–12’ long)
  • Walk-in pantry of 25–40 sq ft
  • Adjacency to dining area with sliding glass door to rear porch
  • Cabinet details and cabinets sized for maximum storage

Additional rooms within 1800 sq ft:

  • Compact home office near entry
  • Mudroom off garage with bench and hooks
  • Laundry room for side-by-side units plus storage

Some plans integrate multi-purpose spaces—an office convertible to guest room—maximizing flexibility without expanding the footprint.

Outdoor Living: Porches, Patios & Curb Appeal

The image depicts an inviting 1800 sq ft modern farmhouse with a spacious front porch, designed for rocking chairs, enhancing its country curb appeal. A covered rear porch, accessible from the great room and dining area, provides an ideal space for outdoor dining and grilling, showcasing attractive exterior materials like fiber-cement siding and stone skirting.

Outdoor space makes an 1800 sq ft home feel significantly larger, echoing the indoor-outdoor focus of classic mid century California ranch homes. A 300 sq ft covered porch costs roughly one-fifth what equivalent interior space would cost to construct.

Front porch: About 200 sq ft, 8’ deep across half the front view elevation. Deep enough for rocking chairs, contributing to farmhouse or country curb appeal.

Covered rear porch: 250–280 sq ft, accessible from the great room or dining area—ideal for grilling and outdoor dining.

Exterior materials for curb appeal:

  • Fiber-cement or vinyl siding
  • Board-and-batten details on gables
  • Stone or brick skirting at foundation level
  • Low-maintenance trim

Simple exterior elevations and modest roof complexity keep construction cost and long-term maintenance manageable.

Realistic Cost Ranges for Building an 1800 Sq Ft House

Separate plan cost from construction cost to budget accurately.

Plan set pricing (2024–2025):

Format

Price Range

Basic PDF set

$900–$1,200

Premium plan

$1,400–$1,800

With upgrades/licenses

Up to $4,000

Construction costs vary dramatically by location. National ranges run $120–$200+ per sq ft for conditioned space, translating to $216,000–$360,000+ for an 1800 sq ft home before land and site prep.

Add-ons affecting cost include upgraded foundation, premium roof materials, enhanced energy packages, a material list specifying higher-end finishes, and even garage expansions similar to a ranch home garage addition project. Many providers offer a price guarantee for limited time periods.

Recommendation: Obtain at least three itemized estimates from local builders using similar plans to compare labor, materials, and timelines. Ask about builder advantage programs for additional sets or repeated builds.

Plan Set Formats & Licensing Options

Different formats serve different users. Choose based on your project needs, much like selecting the right contractor when working with bungalow home builders.

PDF sets: Best value, fastest delivery. Ideal for homeowners—print locally as needed. Includes electrical plan, floor plan, exterior elevations, and typically drawn construction details.

Printed multi-copy sets: 5-copy bundles for builders needing site markups. Electrical outlets and other details clearly marked.

CAD files: Premium option for design professionals making structural changes with local engineers. Allows filter exterior floor plan modifications.

License types:

  • Single-use: One build permitted
  • Multi use license: Multiple builds of the same plan
  • Unlimited: Production builders

Confirm what’s included—build rights, print permissions, modification rights—before finalizing your purchase. Check saved plans against similar plans to ensure you’re getting the best value.

Customization & Modification of 1800 Sq Ft Plans

The image depicts a selection of customizable 1800 sq ft house plans, showcasing various modifications such as flipped layouts for lot orientation, adjusted window placements, and upgraded wall materials. It highlights the flexibility of modern farmhouse plans, emphasizing features like an open floor plan, master suite, and options for porch configurations.

Most 1800 sq ft house plans are starting points. Common modifications include:

  • Flipping (right-reading reverse) for lot orientation
  • Adjusting window placements
  • Upgrading from 2×4 to 2×6 walls
  • Reconfiguring porch configurations

Layout-level changes buyers often request: enlarging the kitchen, shifting laundry for better garage access, or combining two bedrooms into a customized guest suite.

How to request changes:

  1. Mark up a printout with priorities
  2. List must-haves (e.g., “ADA-friendly shower,” “fireplace in great room”)
  3. Share with plan designer for review

Any structural change—adding a basement, altering roof pitch, moving load-bearing walls—requires review by a licensed local structural engineer. Balance wish-list upgrades against budget to keep the new house efficient at around 1800 sq ft.

How to Choose the Right 1800 Sq Ft House Plan

Use this checklist to move from browsing to confident selection:

Assess your lot:

  • Width (will 58’–60’ fit within setbacks?)
  • Slope (affects foundation choice)
  • Orientation for sun, views, and interior elevations
  • Local building codes and contact information for permits

Consider household needs for 10–15 years:

  • Bedroom count for current and future family
  • Work-from-home space requirements
  • Aging-in-place accessibility
  • Storage expectations

Compare at least three layouts:

  • Modern farmhouse ranch
  • Traditional Craftsman
  • Contemporary single-story

Verify requirements:

  • Local building codes
  • HOA architectural review
  • Additional options for your region

A well-designed 1800 sq ft plan delivers decades of comfortable, efficient living. Start with your lot dimensions, list your priorities, and request a build report from local builders before committing to your new home blueprints.

author avatar
Tom
Tom is a ranch home enthusiast and design researcher based in the USA. He covers floor plans, architectural styles, and everything ranch living, from cabin retreats to full-time family homes.